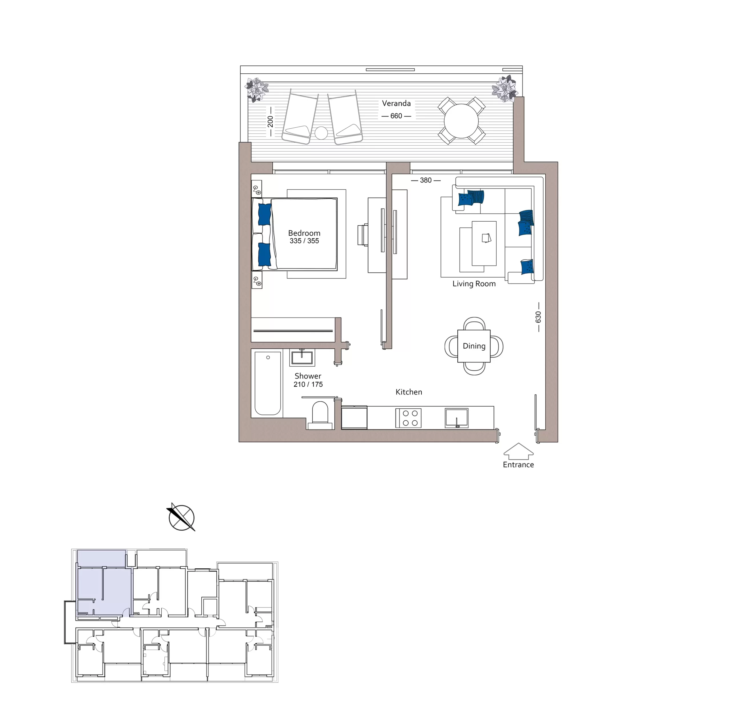
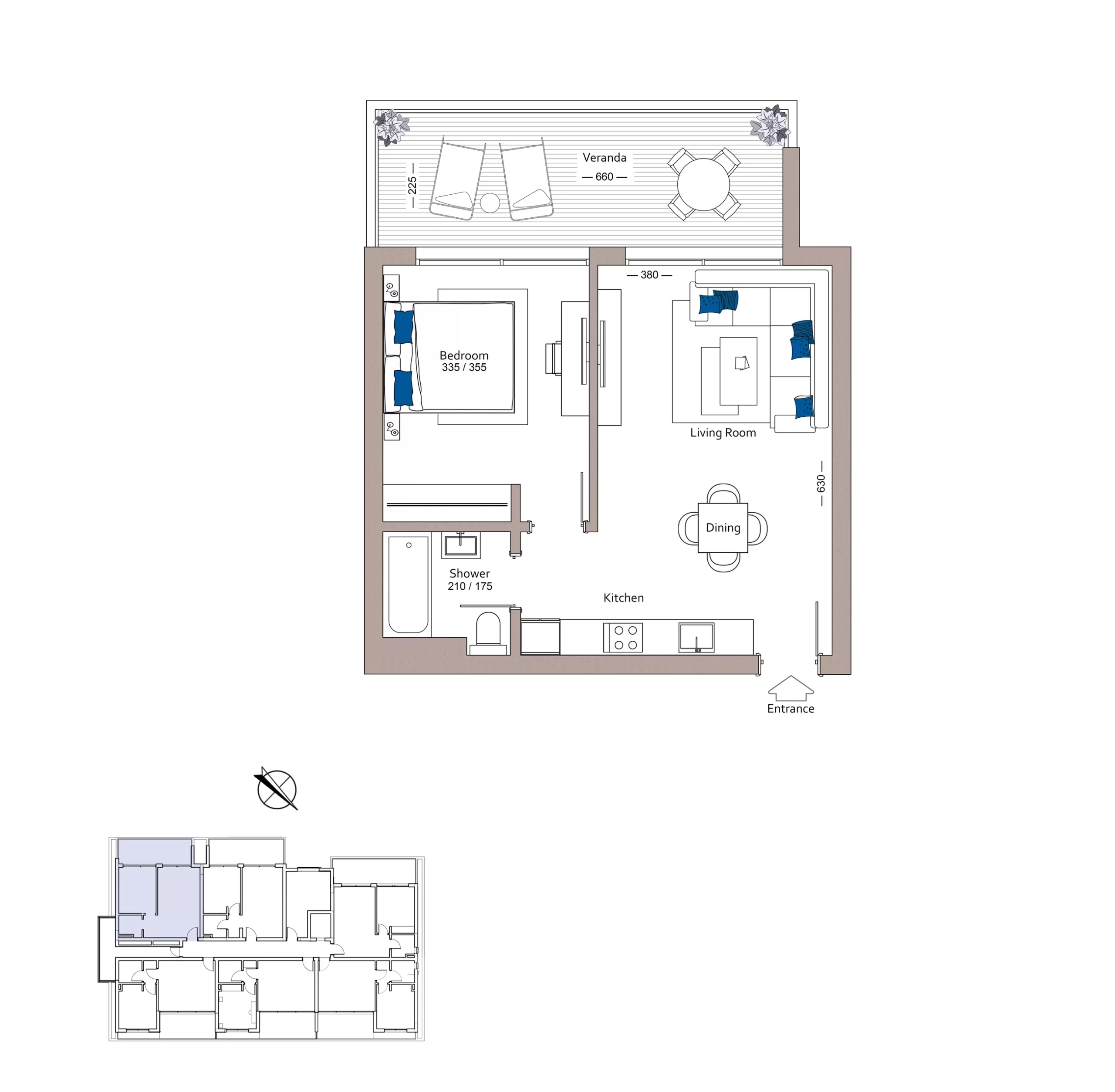
הלב הפועם של העיר
פרויקט המגורים החדש בלב לימסול ההיסטורית מציע חוויית מגורים
אחרת , כזו שמשלבת עיצוב מודרני עם השראה מהעיר העתיקה,
איכות חיים גבוהה וסטנדרט בנייה מוקפד.
בין רחובות שקטים ונוף עוצר נשימה לעיר ולים, שוכן מתחם בוטיק ייחודי
הכולל שני בניינים יוקרתיים, שטחים משותפים עשירים, בריכה פנורמית,
חדר כושר פתוח, ועיצוב פנים מוקפד. עם מיקום מנצח, נגישות ונוף מרהיב
מדובר בנכס אטרקטיבי למגורים ולהשקעה כאחד.
הבית המושלם להיום – וההשקעה הבטוחה של מחר
במרחק צעדים ספורים מהטיילת הקסומה ומהעיר העתיקה של לימסול,
CENTRO LIMASSOL ממוקם בלב הפועם של העיר, קרוב לים, קרוב לחיים.
טיילת מרהיבה, בתי קפה ציוריים, נוף לים או גיחה קצרה להרים ולעיר סמוכה.
הכל זמין, בזכות הנגישות המושלמת לצירי התנועה המרכזיים.
יותר מדירה – שקט נפשי אמיתי
בין אם תבלו אחר צהרים שטוף שמש לצד הבריכה, או תיהנו משקיעה
שקטה בגינה המעוצבת, השקט, הנוחות והשירות ילוו אתכם בכל רגע.
שירותי ניהול מתקדמים זמינים עבורכם 24/7, כדי להבטיח חוויית מגורים
אופטימלית בין אם זה הבית הקבוע שלכם, או נכס מניב להשקעה.




























